107 Merlin Road
$1,250,000
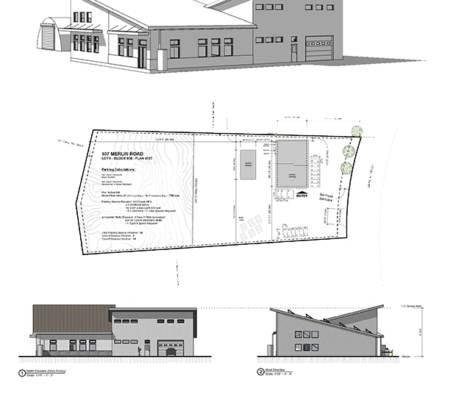
Industrial development lot, 2.69 acres in size, located in the Engle Business district. The IG zoning allows for a large number of industrial and similar uses. It has been cleared, blasted, leveled, and filled, ready to build on. A 95’6” X 61’ 6” 6” thick concrete has already been poured in the center of the lot, near the road; it contains piping for in-slab radiant heat. The purchaser can either receive a full set of architectural plans for a 5935-sf. building, a $80K value OR plan their own design.
Details
-
Address107 Merlin Road
-
LocationYellowknife
-
Price$1,250,000
-
Taxes$5,426.00
-
Lot Size2.69 Acres
Location
Mortgage Calculator
Rate: 5.00% |
5% Down |
10% Down |
15% Down |
20% Down |
25% Down |
|---|---|---|---|---|---|
Down Payment |
$62,500 |
$125,000 |
$187,500 |
$250,000 |
$312,500 |
10 Years |
$12,566 |
$11,904 |
$11,243 |
$10,581 |
$9,920 |
15 Years |
$9,359 |
$8,866 |
$8,374 |
$7,881 |
$7,389 |
20 Years |
$7,803 |
$7,393 |
$6,982 |
$6,571 |
$6,161 |
25 Years |
$6,907 |
$6,543 |
$6,180 |
$5,816 |
$5,453 |
MONTHLY PAYMENTS ARE BASED ON A FIVE (5) YEAR TERM AT A RATE OF 5.00%. CMHC FEES NOT INCLUDED. |
|||||